Четырёхстоечный подъёмник KraftWell KRW6.5 — 6,5 т, гладкие платформы 5770 мм, пневмостопора
Для слесарных работ и тяжёлой коммерческой техники.
🚙 Мощь для крупных авто — с комфортом и безопасностью
KRW6.5 — это усиленный четырёхстоечный подъёмник для СТО, КАТП и автосервисов, работающих с внедорожниками, микроавтобусами, фургонами и лёгкой спецтехникой:
- Грузоподъёмность 6500 кг — уверенно поднимает даже полноразмерные коммерческие автомобили
- Длина платформ: 5770 мм — принимает технику с колёсной базой до 3,8 м
- Гладкие платформы — идеальны для слесарных работ, легко чистить, можно в будущем дооснастить под сход-развал
🛠️ Безопасность и надёжность
- Электромеханическая защита от падения — срабатывает при обрыве троса
- Перепускной клапан перегрузки — предотвращает повреждение гидросистемы
- Аварийный клапан опускания — безопасное снижение при отключении питания
- Механический контроль натяжения троса — исключает провисание
- Превосходная антикоррозионная защита — устойчивость к влаге, маслу и химии
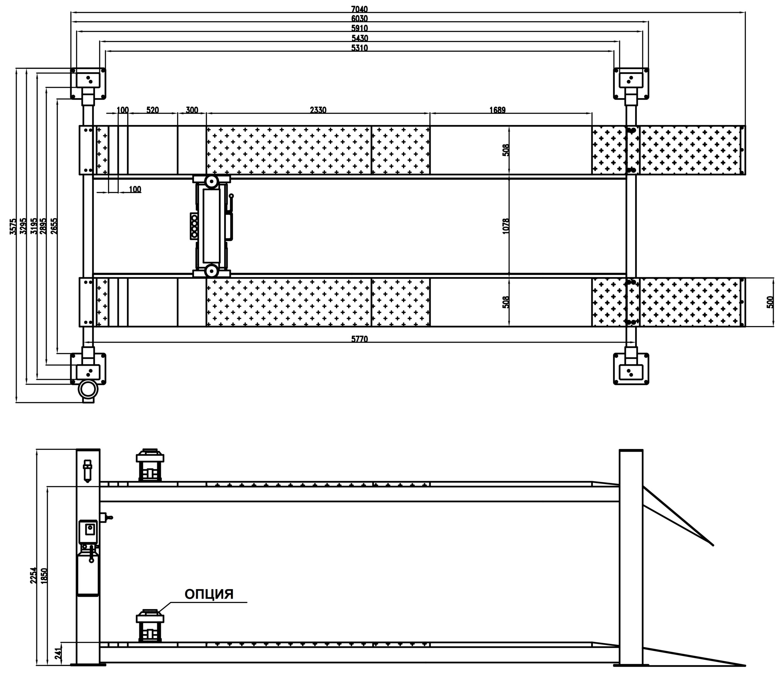
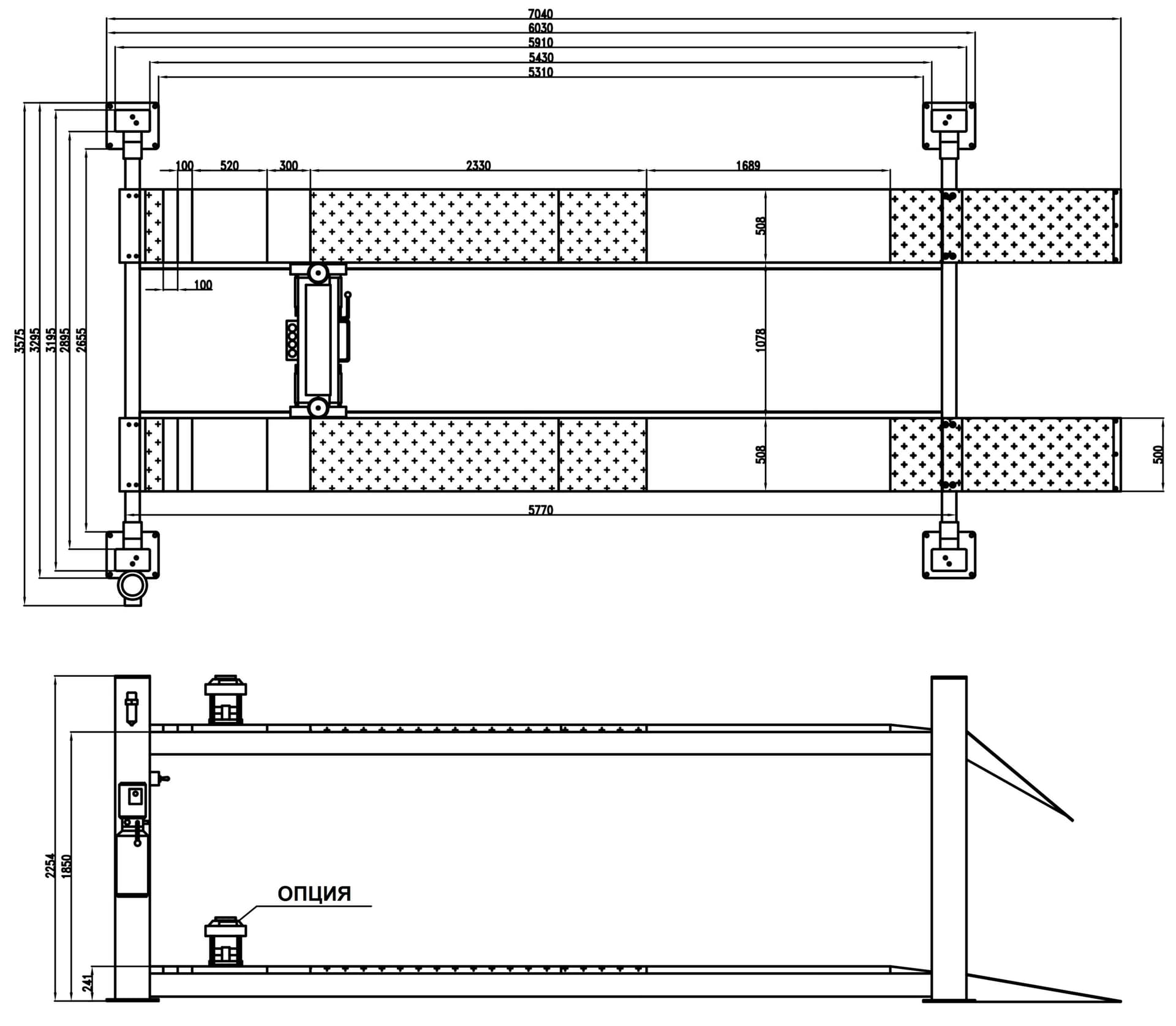
📏 Технические параметры
- Г/п: 6500 кг
- Высота подъёма: 1850 мм
- Длина платформ: 5770 мм
- Ширина платформ: 508 мм
- Расстояние между стойками: 2895 мм
- Общая ширина: 3295 мм
- Клиренс: 191 мм
- Питание: 380 В, 3 кВт
- Управление стопорами: пневматическое (6 бар)
- Время подъёма: 65 сек
- Применение: СТО, КАТП, слесарные работы, подготовка под сход-развал
💼 Преимущества
- Полный доступ к днищу, выхлопу, подвеске и трансмиссии
- Возможность последующей модернизации под пост сход-развала
- Быстрая и безопасная работа благодаря пневмостопорам
- Подходит для ежедневного обслуживания коммерческого транспорта
📦 Гарантия и доставка
- Полный комплект — готов к монтажу
- Официальная гарантия
- Доставка до терминала ТК — бесплатно